阳光生活汇二楼生活休闲区项目招租公告

发布者:孟超发布时间:2025-01-21浏览次数:103

一、项目基本情况

1.项目编号:ZCGS-2025-007

2.项目名称:阳光生活汇二楼生活休闲区项目

3.项目位置该项目位于河南师范大学阳光生活汇二楼电梯北侧,走廊西侧区域。

 

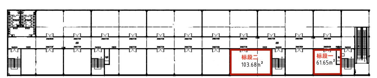
阳光生活汇二楼电梯北侧平面图

4.段详情:

标段

面积(㎡)

经营范围

承租期限

标段一

61.65

理发、美发

3

标段二

103.68

体育文化休闲

3

注:同一申请人(竞租人)只能参与一个标包的竞租。

5.最低限价:见招租文件

二、承租人资格要求:

1、注册于中华人民共和国境内,具有独立承担民事责任能力的法人、其他组织或个体工商户(法人或其他组织提供营业执照,经营范围符合本项目要求,个体工商户需提供营业执照和身份证)

2、具有良好的商业信誉和健全的财务会计制度;

3、具有履行合同所必需的设备和专业技术能力;

4、有依法缴纳税收的良好记录

5、参加招租活动前三年内,在经营活动中没有重大违法记录(重大违法记录是指承租人因违法经营受到刑事处罚或者责令停产停业、吊销许可证或者执照的行政处罚),以现场查询为准

6对列入失信被执行人、重大税收违法案件当事人名单、政府采购严重违法失信行为记录名单的承租人,拒绝参与本次招租活动。【资格审查时,将通过“信用中国”网站(www.creditchina.gov.cn)、中国政府采购网(www.ccgp.gov.cn)查询承租人信用记录信用信息查询记录及相关证据与其他文件一并保存。查询截止时间:本项目报价文件递交截止时间】;

7、单位负责人为同一人或者存在控股、管理关系的不同单位,不得同时参加本项目;法定代表人为同一个人的两个以上法人,母公司、全资子公司及存在控股关系的公司,不得同时参加本项目。(提供在“国家企业信用信息公示系统”中查询打印的相关材料并加盖公章:包含公司基本信息、股东信息及股权变更信息)。

8次招租项目不接受联合体的报价响应

三、获取招租文件:

1、时间:凡有意参加本次招租活动的承租人,请于2025年124日至2025年126日止,每天8:30-11:30,15:00~17:30(北京时间),按照下述要求获取招租文件,逾期不再接受。

2、拟参加承租人须将有效的营业执照副本、是法人的提供法人授权书(法定代表人也需出具法人授权书)、法人及被授权人身份证提供上述证明文件复印件一套到资产经营公司现场报名。

3、资产经营公司将对报名人员进行资格审查,资格审查通过后领取招租文件。

四、开标时间及地点

1、时间:2025年251000分(北京时间)。

2、地点:河南师范大学学术交流中心一楼会议室;逾期送达或未送达指定地点的,招租人不予受理。

五、发布公告的媒介及公告期限

本次公告在《河南师范大学资产经营有限公司官网》网上发布。

六、联系方式

招租人:河南师范大学资产经营有限公司

  址:河南省新乡市建设东路134号院

联系人:李老师

联系电话:0373-3326899

  编:453000


Baidu
map